服务热线
一、主要用途:
1、ISW卧式清水泵,供输送清水及物理化学性质类似于清水的其他液体之用,适用于工业和城市给排水,高层建筑增压送水,园林喷灌,消防增压,远距离输送,暖通制冷循环、浴室等冷暖水循环增压及设备配套,使用温度T≤80℃。
2、ISWR卧式热水泵广泛适用于:冶金、化工、纺织、造纸、以及宾馆饭店等锅炉热水增压循环输送及城市采暖系统,ISWR型使用温度T≤120℃。
3、ISWH卧式化工泵,供输送不含固体颗料,具有腐蚀性,粘度类似于水的液体,适用于石油、化工、冶金、电力、造纸、食品制药和合成纤维等部门,使用温度为-20~C~+120℃。
4、ISWB卧式管道油泵,供输送汽油、煤油、柴油等用油类产品或易燃、易爆液体,被输送介质温度为-20~C~+120℃。
二、工作条件:
1、环境温度
2、所输送介质中固体颗粒体积含量不超过单位体积的0.1%,粒度
注:如使用介质为带有细小颗粒,请在订货时注明,以便厂家采用耐磨式机械密封。
三、产品特点:
运行平稳:泵轴的同心度高及叶轮动静平衡好,平稳运行可减轻振动。
维修方便:更换密封、轴承,简易方便。
占地更省:出口可向左、向右、向上三个方向,便于管道布置安装,节省空间。
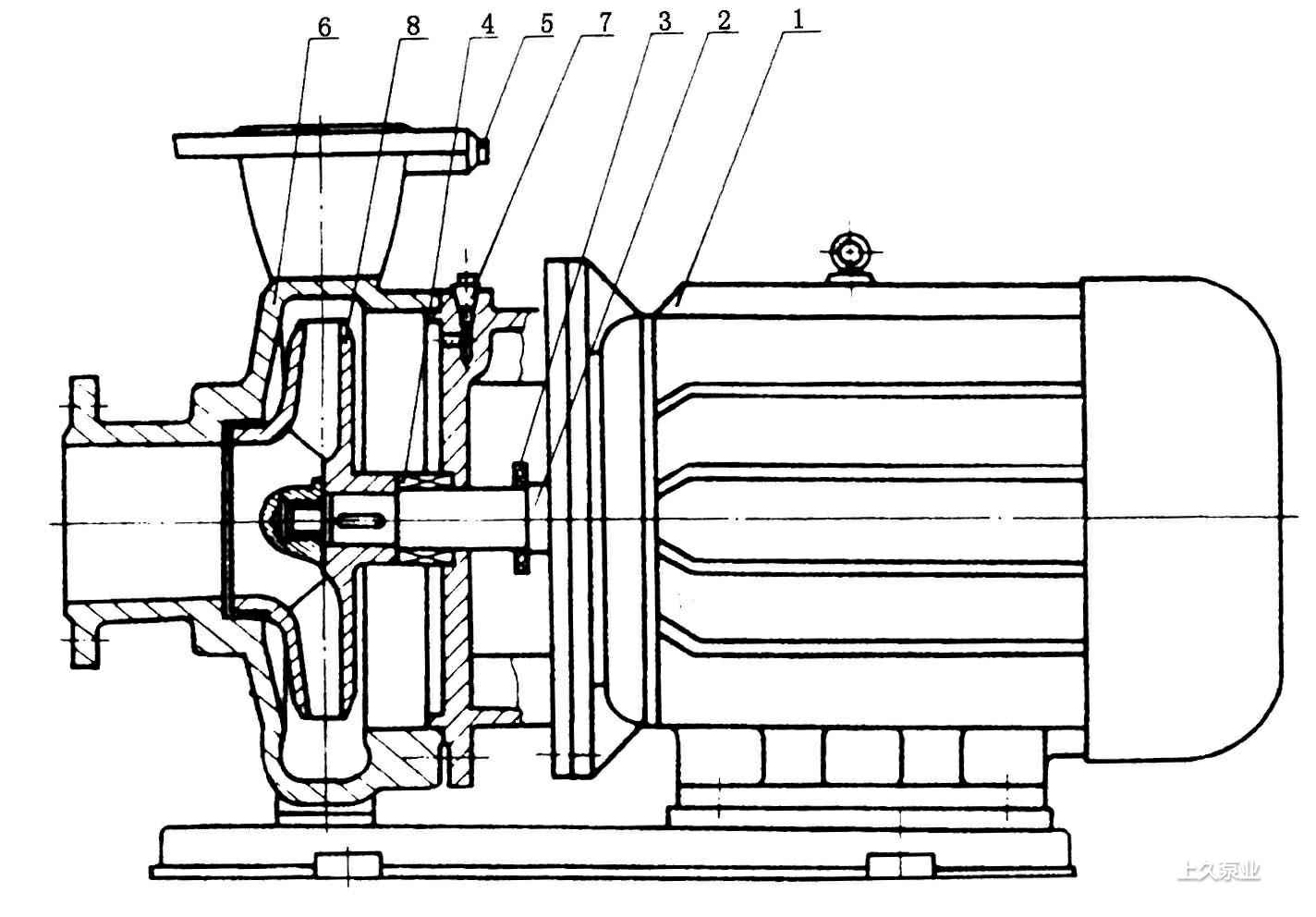
四、结构图:
1电动机:直接与水泵联接传送动力,采用加长轴电机。
2泵轴:与电机同轴,为电机加长轴,确保了轴的同心,使泵运转平稳。噪音低、振动小,采用镀铬处理,增强了使用寿命。
3挡水圈:防止因密封漏水而使电机进水。
4机械密封:采用不锈钢、碳化钨、氟橡胶等材料制成。平衡式耐高温。高压机械密封,运行寿命长,不易渗漏,对轴无磨损,不积水垢,保证工作环境的整洁。
5取压塞:可安装压力表直观监控泵的运行。
6泵体:压出塞和吸入室设计合理,设有安装底脚,便于安装和运行稳固。
7放气塞:灌泵时排净泵内空气,保证了泵的正常启动。
8叶轮:采用合理的水力模型设计而成,可靠性J较好。





